<< Back

HISTORIC RESIDENCE – ORANGE, CALIFORNIA

Custom Single-Family Residential
HISTORIC RESIDENCE – ORANGE, CALIFORNIA

Located within the Historic District within the City of Orange, California…this Single-Family Residence is a complete remodel of a California Bungalow Style home.  A new Master Bedroom Suite is being added and the existing kitchen is being completely remodeled in a design motif that is consistent with the California Bungalow Style of the house while providing modern amenities throughout the entirety of the kitchen.

The landscaping at the front of the home will also be redesigned and a wooden fence, consistent with the California Bungalow Style, will be incorporated into the design.  The rear yard will be augmented with a small porch, sized just right for the historic Adirondack chairs to sit comfortably under the new rear porch roof element overlooking the back yard.

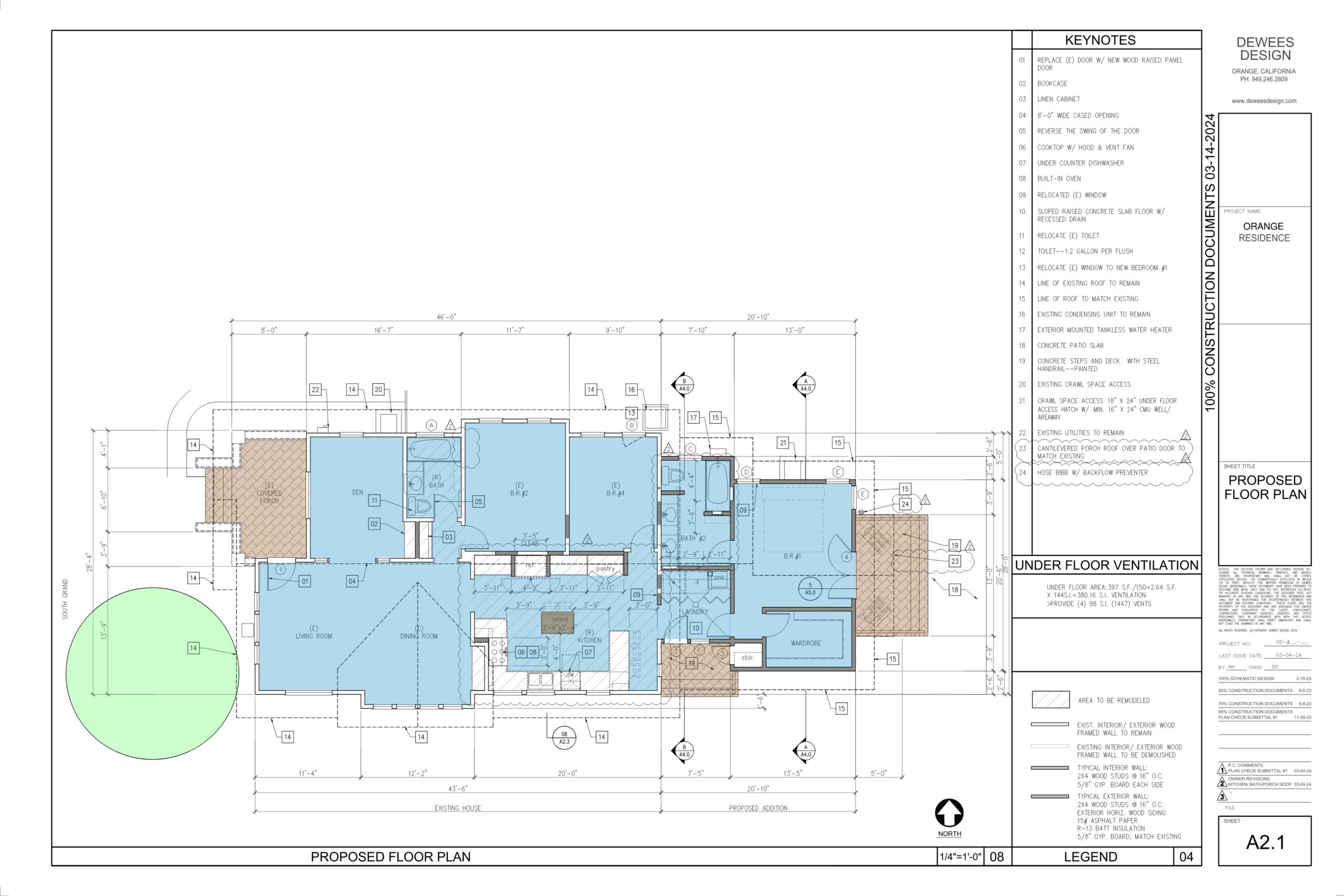
FLOOR PLAN OF KITCHEN DESIGN

FLOOR PLAN OF KITCHEN DESIGN

04 03

3D IMAGES OF KITCHEN DESIGN

02 01

3D IMAGES OF KITCHEN DESIGN

05 06

3D IMAGES OF KITCHEN DESIGN

01 04 08