<< Back

LINDBERG RESIDENCE – ADU – ORANGE, CALIFORNIA

Accessory Dwelling Units (A.D.U.'s) Additions and Remodels
LINDBERG RESIDENCE – ADU – ORANGE, CALIFORNIA

PROPOSED ADU AT REAR YARD WITHIN CONTEXT OF EXISTING SINGLE-FAMILY RESIDENCE

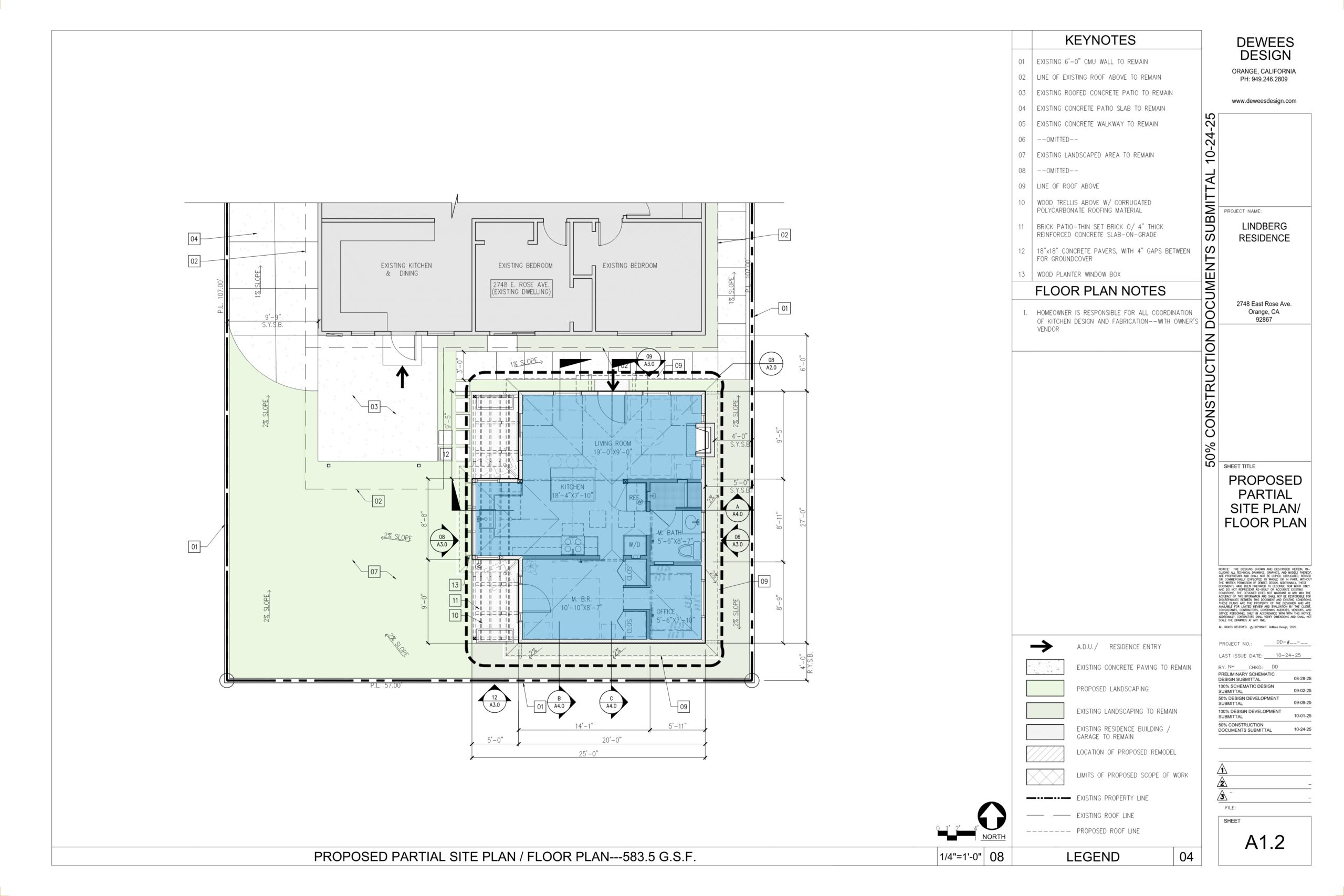
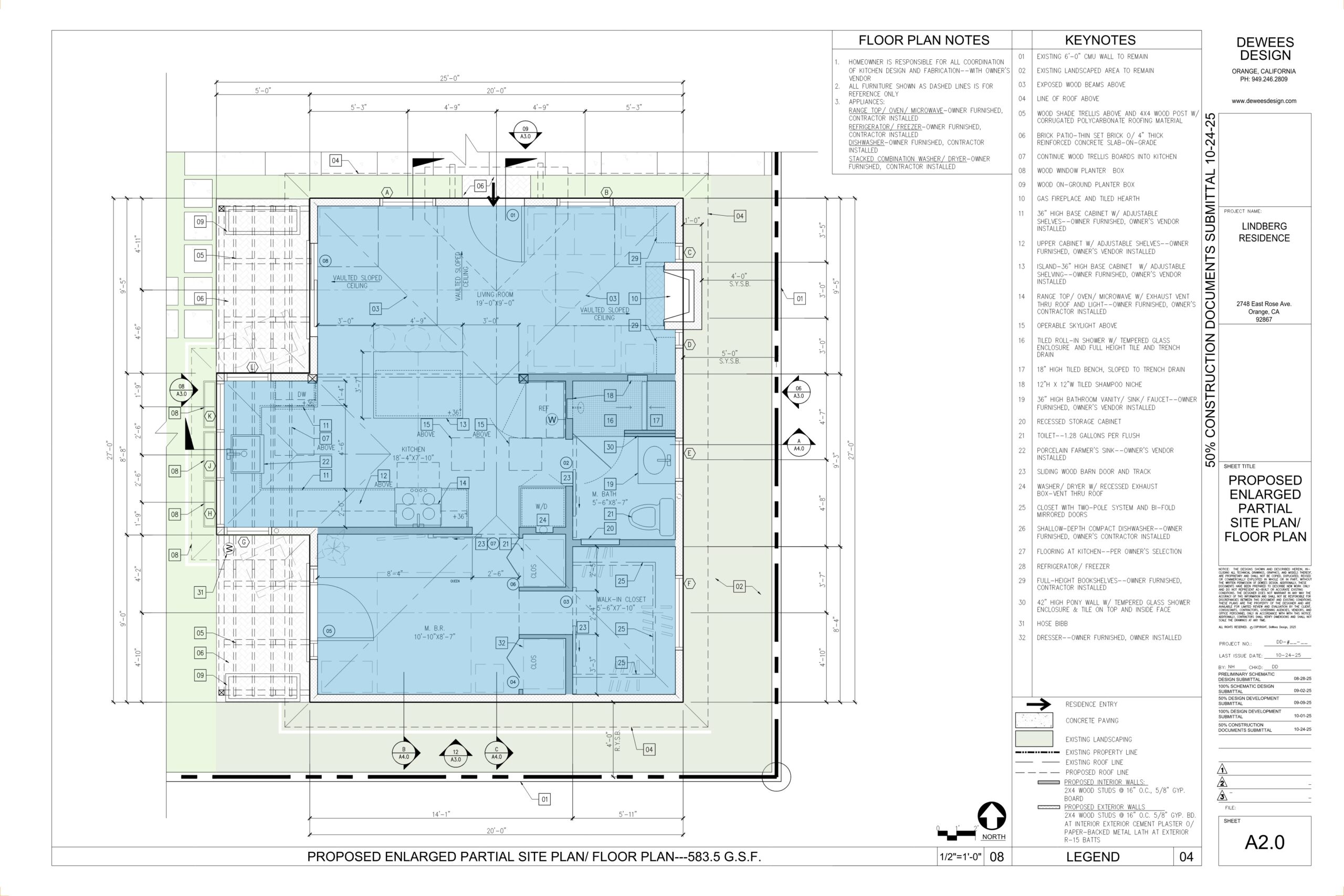
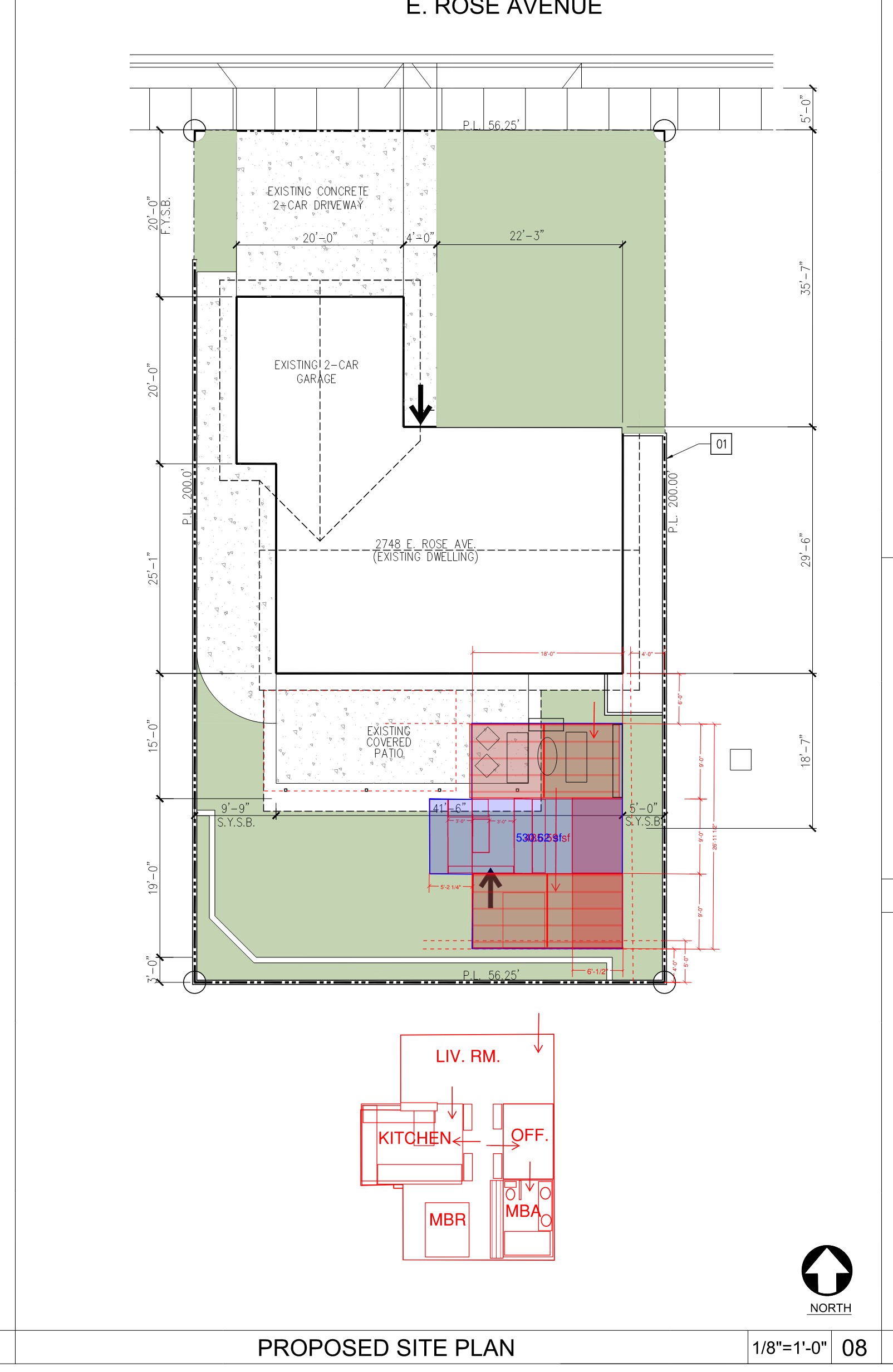
The Lindberg Residence is a custom-designed, detached, 563.5 Gross Square Foot A.D.U. located in Orange, California.  The project is being designed for a single woman to be used as a primary retirement home, allowing the primary residence to become rental property for other family members.  The siting of the A.D.U. is designed to push it as far into the southeast corner of the property in order to allow for as large a backyard as possible.

Construction is scheduled to be complete by the end of 2026.

The design of the A.D.U. is to provide a formal Living Room, full-size gourmet Kitchen, Master Bedroom and Bathroom and a small Office for at-home work.  The focus of the design is the Kitchen which projects a greenhouse like space with large expanses of windows into the existing backyard of the residence and is completely open to the large Living Room.  The Living Room has exposed heavy-timber wood beams at the volume ceiling and is punctuated with a fireplace on the far east wall.  The Master Bedroom and Bathroom are located on the far south side of the property allowing for as much privacy as possible.

CONCEPTUAL SITE PLAN STUDY

CONCEPTUAL SITE PLAN STUDY

CONCEPTUAL FLOOR PLAN STUDY

CONCEPTUAL FLOOR PLAN STUDY

SITE PLAN OF EXISTING SINGLE-FAMILY RESIDENCE AND PROPOSED SITE PLAN

SITE PLAN OF EXISTING SINGLE-FAMILY RESIDENCE AND PROPOSED SITE PLAN

PROPOSED SITE PLAN

PROPOSED SITE PLAN

PROPOSED FLOOR PLAN

PROPOSED FLOOR PLAN

LINDBERG OPTION E - 06 LINDBERG OPTION E - 02

3D IMAGES OF ADU

LINDBERG OPTION E - 03 LINDBERG OPTION E - 04

3D IMAGES OF ADU

LINDBERG OPTION E - 09 LINDBERG OPTION E - 11 LINDBERG OPTION E - 10

3D IMAGES OF INTERIORS